rule2002.001/12
rule2002.002/12
rule2002.003/12
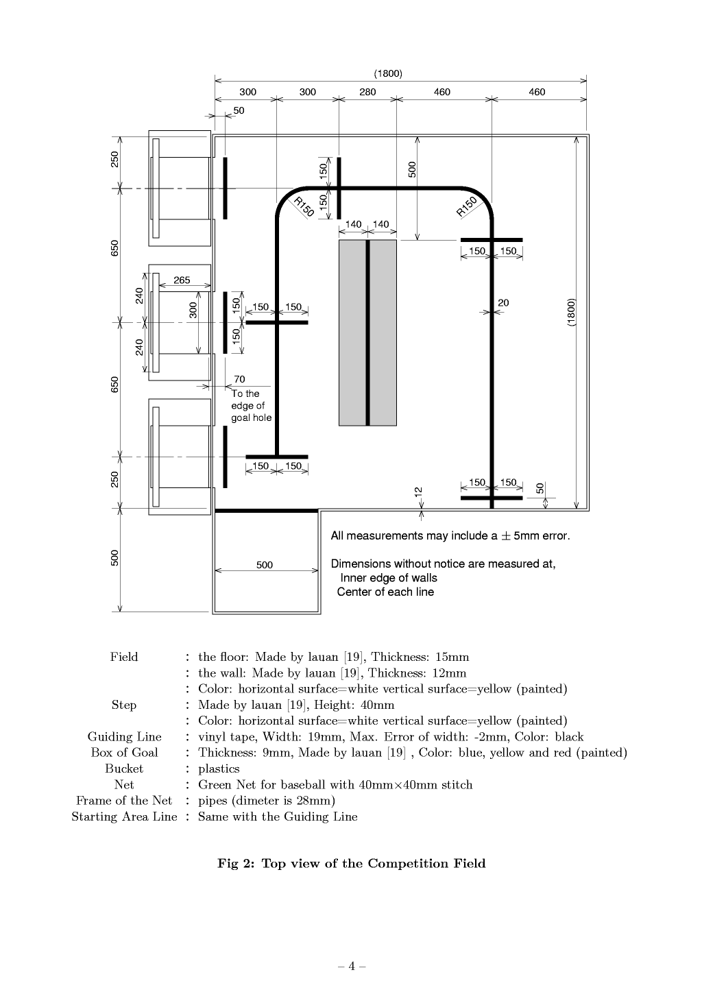
rule2002.004/12
rule2002.005/12
rule2002.006/12
rule2002.007/12
rule2002.008/12
rule2002.009/12
rule2002.010/12
rule2002.011/12
rule2002.012/12