rule2003.001/12
rule2003.002/12
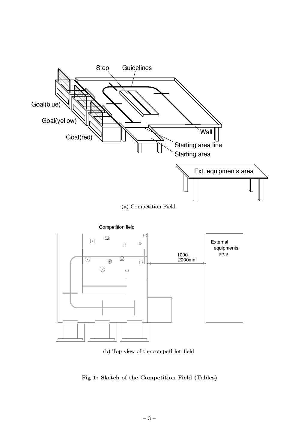
rule2003.003/12
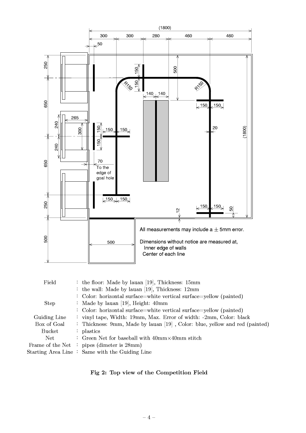
rule2003.004/12
rule2003.005/12
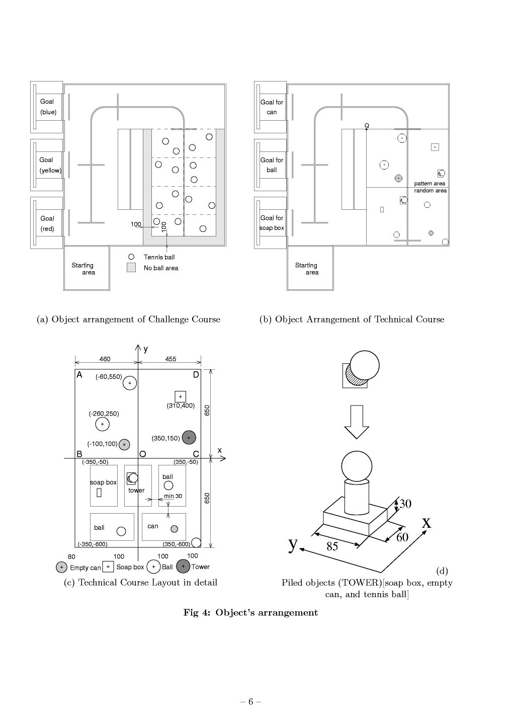
rule2003.006/12
rule2003.007/12
rule2003.008/12
rule2003.009/12
rule2003.010/12
rule2003.011/12
rule2003.012/12